こんにちは!
ハウジング重兵衛 新築コンサルタントの家重 歩武です!
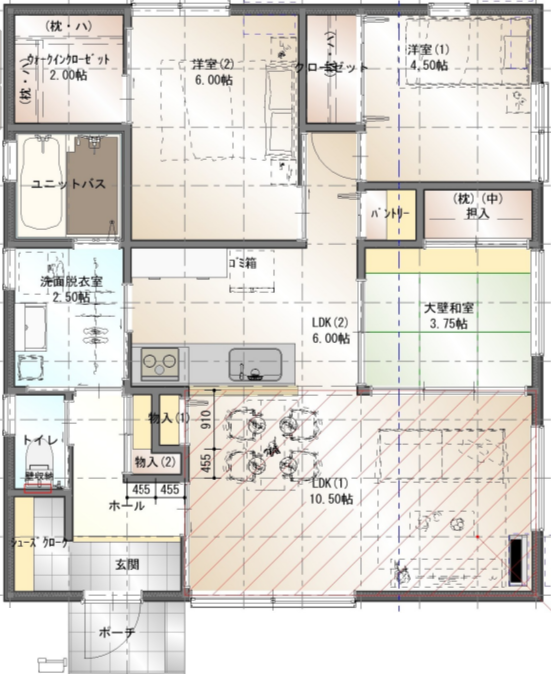
今回は、先日OPENした『平屋モデルハウス』のご紹介です!
場所は成田市三里塚。弊社の分譲地「ファンズライフの杜」内にあります!

ワンフロアならではの家族のつながりと家事ラク動線で、 20代・30代の家づくりでも人気上昇中の平屋♪

【こだわりポイント】
- 子育て世代にちょうどいい、 約20畳のゆったりLDK空間
- 水まわりが全部つながる、 毎日の暮らしにやさしい家事動線
- シューズクロークもパントリーも、 暮らしやすさにこだわった収納設計



2F建てに比べると数の少ない平屋モデルハウスなので、とても参考になるかと思います!
今なら!同じ分譲地内に2階建てモデルハウス2邸もあるので住み心地を比べていただくのにぴったりです!
是非ともご覧いただきたい自慢のモデルハウスとなっています!
『家族の楽しいを詰め込んだ、もっと家族になる家』がコンセプト。
ご家族の想いをカタチにするお家づくりをスタッフ一丸となってお手伝いさせていただきます!
是非、一度 fun's life home にご相談ください!
よろしくお願いいたします!